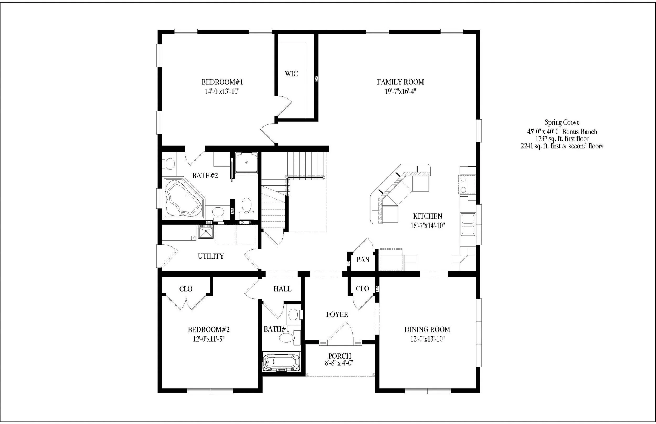
Spring Grove

4 BED · 3 BATH · 2241 SQF · 45’ X 40’

This bonus ranch shows the optional second floor.

Previous
Previous

South Hill

Next
Next

Stone Ridge