0
Skip to Content
Home
Why modular
Floor Plans
Project Blog
Contact
About
About
Trusted Partners
Open Menu
Close Menu
Home
Why modular
Floor Plans
Project Blog
Contact
About
About
Trusted Partners
Open Menu
Close Menu
Home
Why modular
Floor Plans
Project Blog
Contact
Folder:
About
Back
About
Trusted Partners
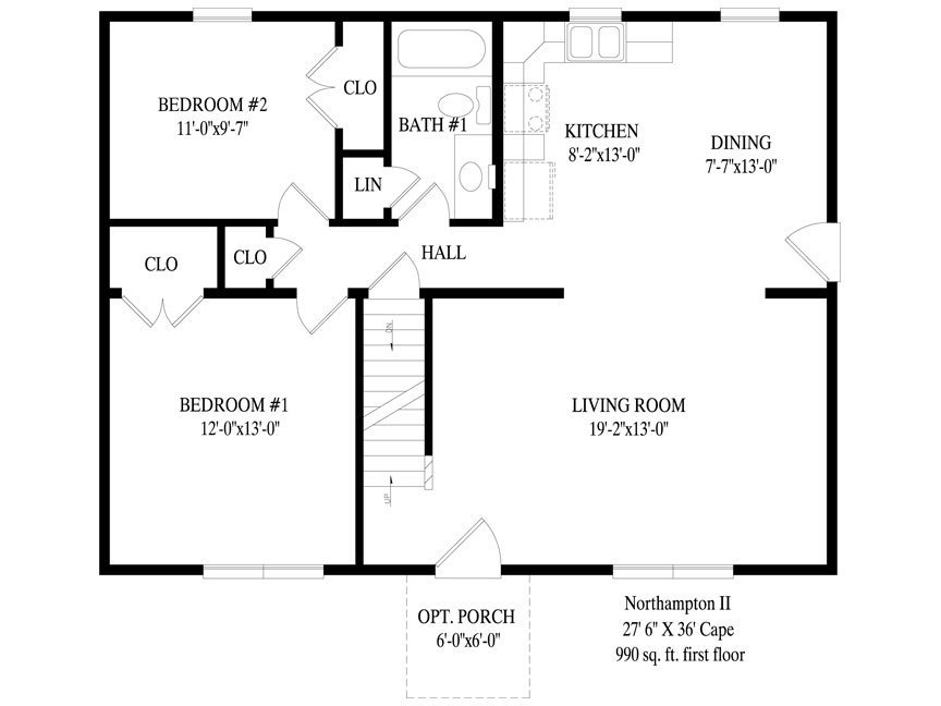
Northampton 2
Previous
Previous
Northampton 1
Next
Next
Northampton 3